Продается нежилое помещение 595, 9 кв. м. на первой линии Октябрьского
Цена продажи
49500000 руб.
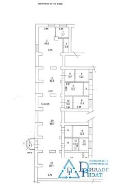
Продается нежилое помещение 595,9 кв.м. на первой линии Октябрьского проспекта - центральной улицы в городе Люберцы, с высоким пешеходным и транспортным трафиком. Помещение состоит из подвала здания (283,4 кв.м.) и 1 этажа (312,5 кв.м.), планировка помещений есть на фото, смотрите. Электричество 50 квт, отопление, водоснабжение, канализация - центральные. В собственности менее 3 лет, основание - договор купли-продажи, полная стоимость в договоре. Свободная продажа. Быстрый выход на сделку. Звоните.
Общая стоимость: 49500000 руб./месяц Этаж/этажность: 1/5 Агентам: Не звонить |
1370190 31 Мая 2017 просмотров 304 |
Добавить комментарий
Похожие объявления

























